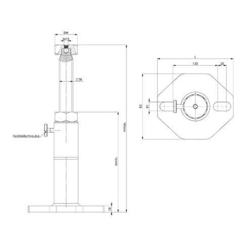
schwer · mit Messing-Feststellschraube · Spindel komplett: Vergütungsstahl, mit Trapezgewinde, Spindelkopf brüniert · Grundkörper: Vergütungsstahl, lackiert
Vorteil: Grundplatte mit geschlossenen Langlöchern zum Einsatz auf Karusselldrehmaschinen
Gewinde in der Kopfauflage zur Fixierung der Spannelemente-Einsatz unter Fliehkräften
Hinweis:Bei Verwendung von Spanneisen Nr. 6315GNG ab 26 mm Schlitzbreite empfehlen wir sicherheitshalber den Fixieraufsatz Nr. 6443G. Schraubbock nicht unter Belastung verstellen ·
Weitere technische Eigenschaften B1: 26mm · B2: 190mm · Tragfähigkeit max.: 50kN · Zentrierloch-Ø: M12 · H max.: 750mm · L: 220mm · TR: 40 x 7mm · H min.: 430mm · Schlüsselweite: 65mm
EAN/GTIN: 4020772376291